位置:首页 > 产品中心
产品类别
风力发电联轴器 液压系统及辅件 液压滑环 液压旋转接头 配件
产品搜索
确定

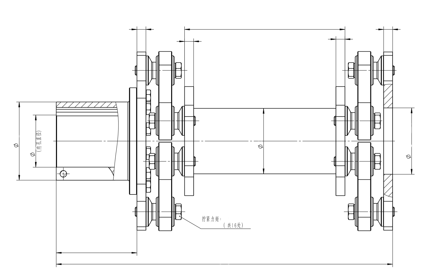
风电高速联轴器
HKGB160
最大扭矩:1150 kNm
最高连续使用温度:40℃
转速:1500rpm
位于风力发电机组传动链的高速端,连接齿轮箱与发电机。 
产品亮点:
高强度扭矩传递,适配3MW+大型风机
免维护设计,耐受极端温差与振动冲击
模块化结构,支持快速更换与定制化参数






主要功能与作用

1. 传递扭矩,将齿轮箱输出的高速旋转扭矩高效,可靠的传递给发电机。
2. 补偿位移和不对中,这是其最重要的功能,风电设备在运行中会产生复杂的动态位移,径向位移,角向位移,轴向位移等。
3. 衰减震动与冲击,吸收齿轮箱传递过来的高频细微震动,缓冲发电机产生的瞬时扭振冲击,保护齿轮箱齿轮。
4. 电气绝缘,部分设计的中间筒可以提供电气绝缘,防止发电机侧的电流传到齿轮箱,避免齿轮箱轴承发生电蚀。
5. 维护便利,作为可拆卸部件,在更换联轴器或检修时,无需大幅度移动笨重的齿轮箱或发电机,简化了维护工作。




海鲲传动
定制化服务:可根据客户需求提供个性化的联轴器设计服务。
技术支持:专业工程师团队提供从选型到安装的全流程技术支持。
服务承诺:24H随时联系,为客户提供最适合的减速机解决方案